PALANGOS CENTRE PARDUODAMOS PATALPOS
- Pateikė: Sandra Tikės Grupė
- Parduodu
- Biurų patalpos
- Palanga, Kiti miestai
- prieš 3 mėnesiai
- 456 peržiūros
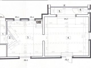
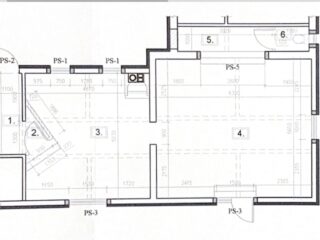
PALANGOS CENTRE PARDUODAMOS KOMERCINĖS PATALPOS, GANYKLŲ G.
Parduodamos 19 kv. m komercinės patalpos geroje vietoje – Palangos centre, Ganyklų gatvėje. 3/1aukšte.
Privalumai:
Strategiškai patogi vieta – lengvai pasiekiama tiek pėstute, tiek automobiliu;
Atskiras įėjimas – užtikrina privatumą ir patogų patekimą klientams ar darbuotojams;
Kampinės patalpos – geresnis natūralus apšvietimas ir didesnė reklamos matomumo galimybė;
Universalus pritaikymas – tinka biurui, grožio paslaugoms, prekybai ar kitai veiklai;
Maži išlaikymo kaštai.
Patalpose : vanduo, elektriniai radiatoriai, boileris, mini vietuvėlė, wc, dušas.
Privatus kiemelis,kuriame telpa du automobiliai.
Kiemelis apsodintas tujomis.
Patalpos randasi prie pagrindinės gatvės.
Planuose namą dažys izoliaciniais dažais.
Tai puiki galimybė investicijai arba nuosavam verslui Palangos kurortinėje zonoje.
Susiję skelbimai
PARDUODAMOS GYDYMO ĮSTAIGOS PATALPOS
- prieš 1 savaitė
- Visi miestai
- Biurų patalpos
KLAIPĖDOJE POILSIO G. PARDUODAMOS KOMERCINĖS PASKIRTIES PATALPOS
- prieš 1 savaitė
- Klaipėda, Didieji miestai
- Biurų patalpos
Nomuojamos biuro patalpos
- prieš 1 savaitė
- Klaipėda, Didieji miestai
- Biurų patalpos
Išnuomojamos įvairios pilnai paruoštos patalpos centre Naujoji Uosto g. Klaipėda
- prieš 3 savaitės
- Klaipėda, Didieji miestai
- Biurų patalpos
Išnuomojamos 65 kv.m. Patalpos Puodžių g. Pirmame aukšte
- prieš 3 savaitės
- Klaipėda, Didieji miestai
- Biurų patalpos
Parduodamos 65,78 kv.m. Patalpos – dirbtuvės Puodžių g. Pirmame aukšte.
- prieš 3 savaitės
- Klaipėda, Didieji miestai
- Biurų patalpos
Parduodamas Pastatas Kretingos raj. Kurmaičių k. Mokyklos g. Plotas 1884,73 kv.m. 41,84 arai
- prieš 4 savaitės
- Kretinga, Kiti miestai
- Biurų patalpos
Išnuomojamos patalpos Vytauto g. Danės g. Šaulių g. N. Uosto g. N. Sodo g. Klaipėda
- prieš 1 mėnuo
- Klaipėda, Didieji miestai
- Biurų patalpos
Išnuomojamos administracinės patalpos Svajonės g. 86 kv.m.
- prieš 1 mėnuo
- Klaipėda, Didieji miestai
- Biurų patalpos
Gargžduose Statybininkų g., nuomojamos biuro / gamybinės / sandėliavimo patalpos.
- prieš 1 mėnuo
- Gargždai, Kiti miestai
- Biurų patalpos
Klaipėdoje, parduodamos komercinės paskirties patalpos
- prieš 1 mėnuo
- Klaipėda, Didieji miestai
- Biurų patalpos
Išnuomojamos 22 kv.m, administracinės patalpos Klaipėdos centre. Pirmas aukštas
- prieš 2 mėnesiai
- Klaipėda, Didieji miestai
- Biurų patalpos
Išnuomojamos 95 kv.m. Administracinės patalpos Taikos pr 4A Klaipėdos miesto centre
- prieš 2 mėnesiai
- Klaipėda, Didieji miestai
- Biurų patalpos
Išnuomojamos 100,74 kv.m. Administracinės patalpos Naujoji Uosto g. Klaipėda. Viskas įskaičiuota
- prieš 2 mėnesiai
- Klaipėda, Didieji miestai
- Biurų patalpos
100 kv.m. Administracinių patalpų nuoma centre N. Uosto g. VISKAS ĮSKAIČIUOTA
- prieš 2 mėnesiai
- Klaipėda, Didieji miestai
- Biurų patalpos
Parduodamas Pastatas Klaipėdos miesto centre Naujojo Uosto g. Plotas 844 kv.m.
- prieš 2 mėnesiai
- Klaipėda, Didieji miestai
- Biurų patalpos


















